0703 088 588
HALI Global Property - Đắp Xây Tổ Ấm - Hạnh Phúc Toàn Cầu
DỰ ÁN: ELYSIA BLU

ELYSIA BLU - NƠI TƯƠNG LAI CỦA CUỘC SỐNG BẮT ĐẦU

Elysia Blu mang đến vị trí trung tâm hoàn hảo

Elysia Blu mang đến vị trí trung tâm hoàn hảo

Elysia Blu, tọa lạc tại một trong những khu vực đáng sống và được săn đón nhất tại Paphos. Chỉ 10 phút đi bộ ra biển, được bao quanh bởi văn hóa, thương mại và thiên nhiên, nơi năng lượng đô thị giao thoa cùng không gian nghỉ dưỡng yên bình.

Quy mô & điểm nổi bật của dự án

Quy mô & điểm nổi bật của dự án

10 tòa nhà căn hộ có kiến trúc ấn tượng, 200 căn hộ được thiết kế tinh tế và hệ thống tiện ích chú trọng phong cách sống.

Tổng quan

Elysia Blu là dự án căn hộ cao cấp tọa lạc tại Paphos – Cộng hòa Síp, cách biển chỉ 10 phút đi bộ, kết nối thuận tiện đến cảng biển, trung tâm thành phố và các tiện ích trọng điểm. Sở hữu vị trí đắc địa ven Địa Trung Hải, dự án mang lại giá trị an cư bền vững và tiềm năng đầu tư ổn định bằng đồng Euro.

Được phát triển theo mô hình resort living, Elysia Blu nổi bật với không gian sống xanh, kiến trúc Địa Trung Hải tinh tế cùng hệ tiện ích cao cấp như hồ bơi trong nhà, gym, spa và khu sinh hoạt cộng đồng. Các căn hộ thiết kế hiện đại, tối ưu ánh sáng tự nhiên, đa dạng từ 1–3 phòng ngủ, phù hợp cho cả an cư lâu dài và đầu tư cho thuê tại châu Âu.

Vị trí dự án
location
Kết nối xung quanh
outstanding facilities
outstanding facilities
Tiện ích nổi bật

Không gian tiện ích nổi bật:

- Thiết kế nội thất hiện đại, gam màu trunh tính

- Khu sinh hoạt chung sang trọng

- Hồ bơi trong nhà, không gian thư giãn cao cấp

- Trải nghiệm sống yên tĩnh - riêng tư - chuẩn resort

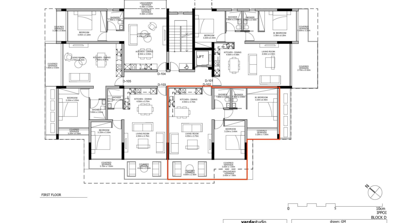
Mặt bằng căn hộ

Căn D102 nằm tại tầng 1, được bố trí khoa học với:

- Không gian phòng khách - bếp mở

- Phòng ngủ thoáng sáng

- Ban công rộng, tối ưu trải nghiệm sống ngoài trời

Phù hợp cho:

- Gia đình sinh sống lâu dài

- Nhà đầu tư cho thuê cao cấp

- Khách hàng tìm bất động sản chuẩn châu Âu để định cư/ nghỉ dưỡng

Liên hệ ngay
Thiết kế mặt bằng
Phong cách thiết kế

Elysia Blu - Tối giản & Tinh tế

Elysia Blu sẽ cho quý vị bước vào không gian sống bên trong, cư dân sẽ cảm nhận một chuẩn mực mới của thiết kế hiện đại. Đây là nơi có thiết kế với đường nét tối giản, ánh sáng tự nhiên tràn ngập, vật liệu cao cấp và tinh tế. Tất cả tạo nên không gian sống vừa truyền cảm hứng, vừa bền vững theo thời gian.

Chính sách bán hàng
sale policy

Thông tin căn hộ – Đề xuất đầu tư (Unit D102)

Thông tin căn hộ – Đề xuất đầu tư (Unit D102)

Loại hình: Căn hộ - Giá bán: €499,000 + VAT

Câu hỏi thường gặp

Có cần chứng minh tài chính khi mua bất động sản tại Síp không?

Síp có thuế tài sản hàng năm không?

Bất động sản tại Síp có thể cho thuê được không?

Mua bất động sản tại Síp có được cấp thường trú không?

Người nước ngoài có được mua nhà tại Síp không?

Đăng ký

nhận thông tin mới nhất

Sản phẩm liên quan

Pafilia Plaza, trung tâm thành phố Paphos, Cyprus

1 phòng ngủ

360.000 EUR (chưa bao gồm VAT)

Xem chi tiết

Thành phố Paphos, Cyprus

2 phòng ngủ

360.000 EUR (chưa bao gồm VAT)

Xem chi tiết

Pafilia Plaza, trung tâm thành phố Paphos, Cyprus

2 phòng ngủ

554.000 EUR (chưa bao gồm VAT)

Xem chi tiết

Pafilia Plaza, trung tâm thành phố Paphos, Cyprus

2 phòng ngủ

725.000 EUR (chưa bao gồm VAT)

Xem chi tiết
background

Nhận tư vấn từ HALI Global Property

Nếu có bất kỳ thắc mắc nào về chương trình định cư, vui lòng gửi thông tin cho chúng tôi để được tư vấn

Đăng ký nhận bản tin
Đăng ký để nhận thông tin mới về định cư
phone
Zalo
Messenger